Armauer Hansens Gate


Størrelse
100 kvm

Ferdigstilt
2023

Kategori
Leilighet

Sted
Oslo

Byggeår
1920

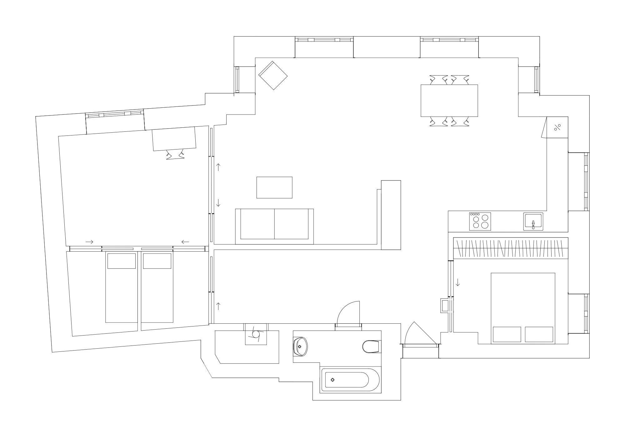
⮡ Med sin lyse hjørnebeliggenhet, store vinduer og åpne plan hadde denne leiligheten på Lindern en utfordring med at den var for åpen.

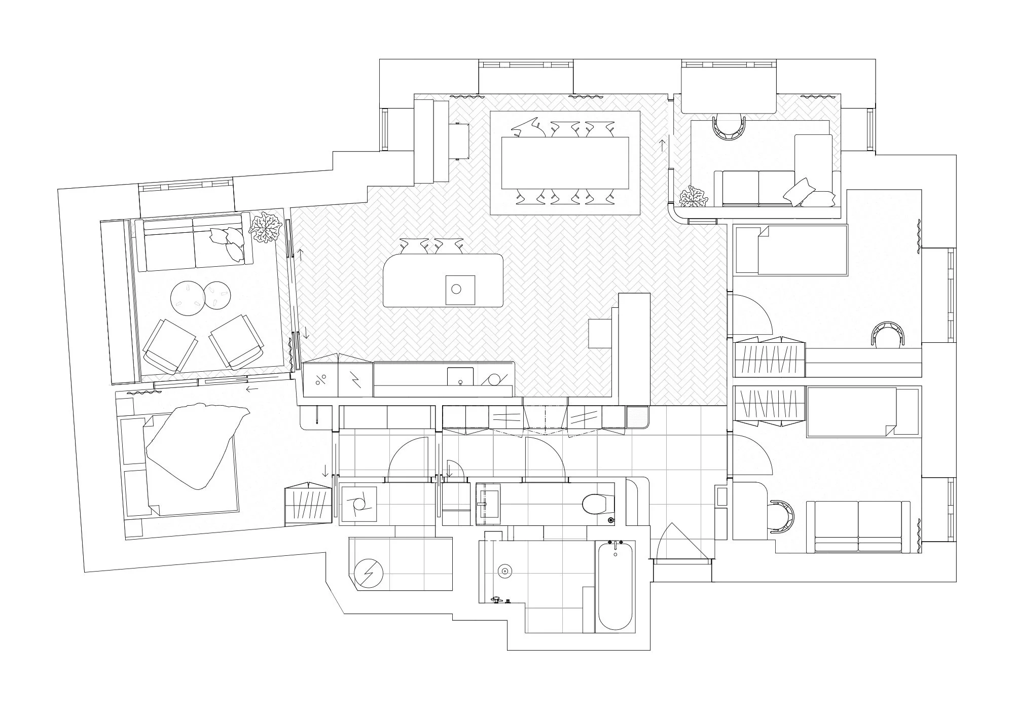
Den opprinnelige planløsningen ble snudd på hodet for å utnytte plassen bedre. Kjøkkenet ble flyttet midt i leiligheten som et naturlig samlingspunkt, mens stuene og hovedsoverom ble lagt mer tilbaketrukket. Nye vegger ga tydeligere soner, en entre med bedre oppbevaring, større bad, eget vaskerom og barnerom til begge barna.

Plassbygde møbler, myke former og en gjennomgående palett i rolige naturtoner og naturmaterialer gir leiligheten et rolig, helhetlig uttrykk.

Før renovering

Etter renovering

For Ett Rom Til

Styling: Jl Interior Studio
Foto: Filippa Tredal

Forrige
Forrige

Geitmyrsveien